Villa singola in vendita

Zagarolo, Via G Romano - Valle Martella
€ 89.000
3 locali 3 locali
32 Mq 32 Mq
1 bagno 1 bagno

Villa singola in vendita

Zagarolo, Via G Romano - Valle Martella

Descrizione annuncio

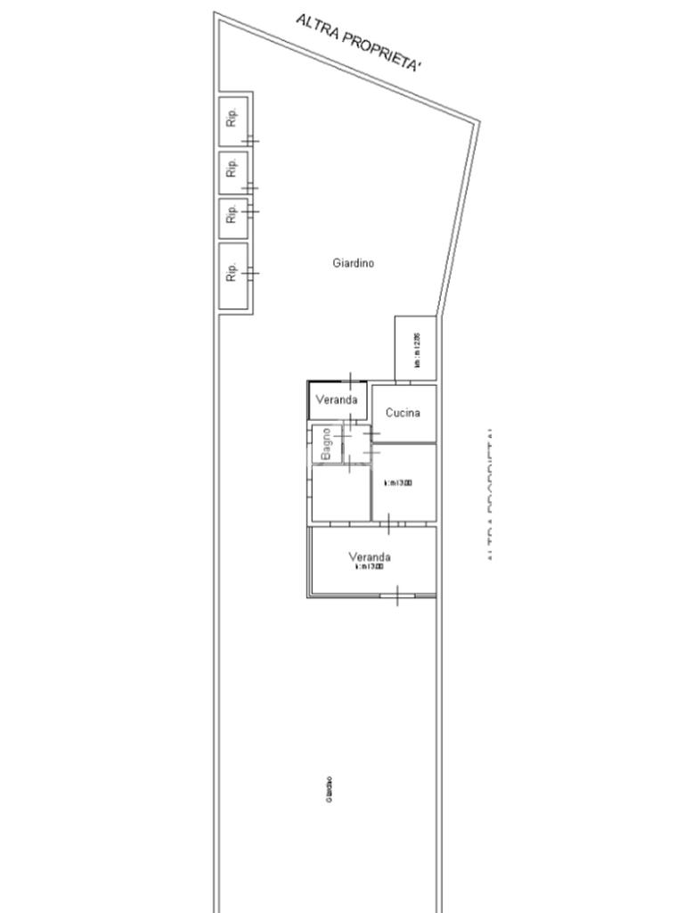
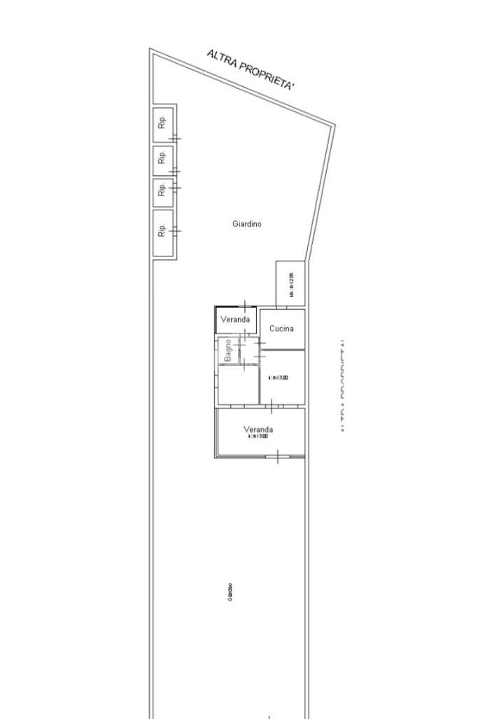
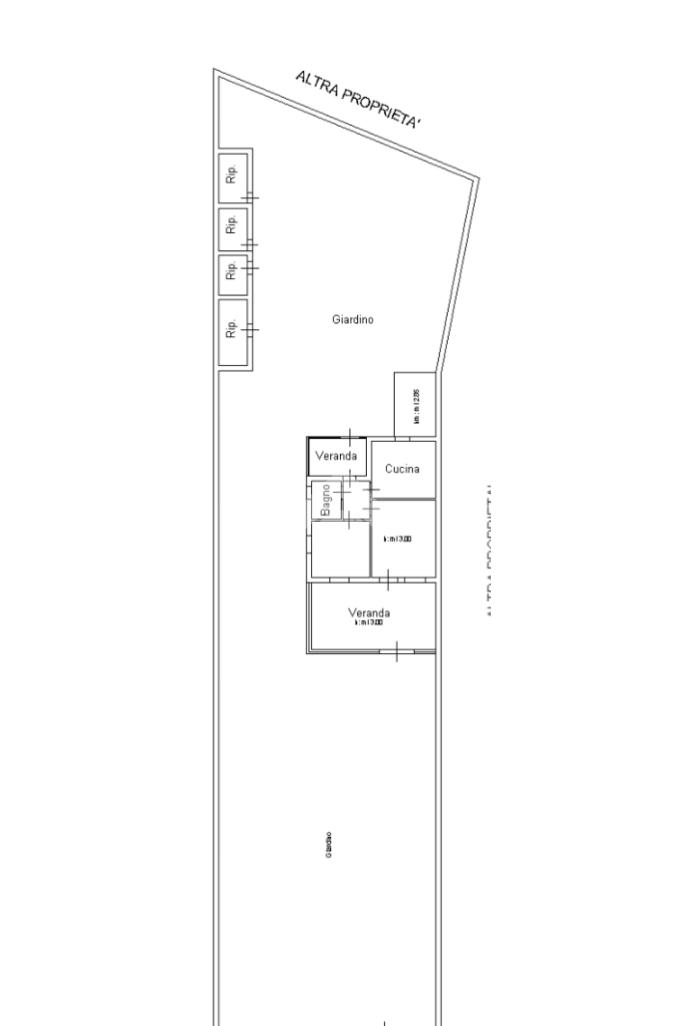
Villa indipendente a Valle Martella – Un’opportunità da personalizzare secondo i tuoi gusti!

Con 1000 mq di giardino esclusivo, questa villa è l'affare perfetto se cerchi una soluzione indipendente da ristrutturare e trasformare in un’abitazione unica.
Composta da soggiorno con angolo cottura, due camere e un bagno, l’immobile offre una base ideale per creare la casa dei tuoi sogni, con la possibilità di ridistribuirla e personalizzarla a tuo piacimento.

L’abitazione è dotata di una veranda con camino, un’area esterna perfetta per godere della tranquillità e della privacy che solo una villa indipendente può offrire.
La casa è completamente regolare e mutuabile, rendendo questa proposta ancora più interessante.

Se cerchi una casa da personalizzare e hai il desiderio di renderla davvero tua, questa è un’opportunità da non perdere.

Approfitta di questa soluzione indipendente e fai crescere il tuo investimento con un tocco personale!

Mostra tutto

Nelle vicinanze

Trasporto pubblico Trasporto pubblico
Monte Compatri - Pantano
Monte Compatri - Pantano
2,6 Km
Valle Martella
Valle Martella
420 m
Prenestina km. 4.500
Prenestina km. 4.500
1,2 Km
Negozi Negozi
Negozi
2,7 Km
Ristoranti Ristoranti
Caffetteria Osteria Gabii
1,4 Km
New Paradise
1,6 Km
Mostra tutto

Caratteristiche

Rif.:
61173142
Piano:
Terra di 1
Totale piani:
1
Posti auto:
2
Camere da letto:
2
Arredamento:
Assente
Mostra tutto
Prezzo Prezzo
€ 89.000
Rata mutuo Rata mutuo
€ 420 / mese
Spese annue Spese annue
€ 0
Proponi il tuo prezzoProponi il tuo prezzo

Classe Energetica

G
G
G
G
G
G
G
G
G
EP globale non rinnovabile:
189.00 kW h/m² anno
EP globale rinnovabile:
189.00 kW h/m² anno
EP invernale del fabbricato:
EP estiva del fabbricato:
Anno di costruzione:
1980
Riscaldamento:
Autonomo
Tipo impianto:
A radiatori
Tipo alimentazione:
Metano

Ti interessa visionare l'immobile?

Fissa un appuntamento  Fissa un appuntamento

Richiedi informazioni

Clicca su Leggi per aprire l'informativa
* Questi campi sono obbligatori

Calcola il tuo mutuo

Semplice e senza impegno
Anticipo

( % )
Mutuo

( % )

pochi semplici passi

inserisci i tuoi dati
Questionario completato
Grazie per aver richiesto un appuntamento senza impegno con un nostro Consulente del Credito e Assicurativo.

Hai inserito correttamente tutti i dati necessari e a breve riceverai una e-mail con un link da convalidare per inviare i tuoi dati.
Affiliato
Studio Casilina Srls
Via Casilina, 1842/A 00132 Roma (RM)

Il nostro staff


  • Luca Pelfini
    Affiliato

  • Flavia Biondo
    Affiliata

  • Nicolas Cipelletti
    Collaboratore

  • Chiara Di Cesare
    Collaboratrice

  • Raffaele D'Agostino
    Collaboratore

  • Daniele Demontis
    Collaboratore

  • Nicole Marcelli
    Coordinatrice

  • Alessandro Pinna
    Responsabile

  • Ludovica Iori
    Coordinatrice

  • Martina Ortu
    Coordinatrice

  • Vincenzo Sergi
    Collaboratore
Via Casilina, 1842/A 00132 Roma (RM)
Zona: Finocchio - Borghesiana
Mostra su mappa
Orari: dal lunedì al venerdì dalle 09:00 alle 13:00 e dalle 15:30 alle 20:00. Sabato fino alle 19:00 e al di fuori degli orari su appuntamento.
Affiliato
Studio Casilina Srls
Via Casilina, 1842/A 00132 Roma (RM)

2026 Tecnocasa Franchising S.p.A. - P. IVA 08365160152 - Via Monte Bianco 60/A 20089 Rozzano (MI). Ogni agenzia ha un proprio titolare ed è autonoma. Privacy policy | Policy utilizzo | Cookie policy