Quadrilocale in vendita

Roma, Via Casilina - Finocchio
€ 219.000
4 locali 4 locali
123 Mq 123 Mq
2 bagni 2 bagni

Quadrilocale in vendita

Roma, Via Casilina - Finocchio

Descrizione annuncio

Centralissimo a Finocchio – Attico e Superattico di Recente Costruzione con Terrazzi e Posto Auto

Nel cuore di Finocchio, in una zona comoda a tutti i servizi, proponiamo in vendita un appartamento su due livelli, posto al secondo e terzo piano, all’interno di una palazzina di recente costruzione.

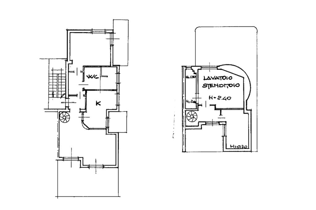
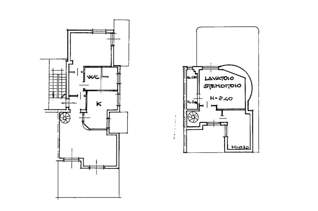
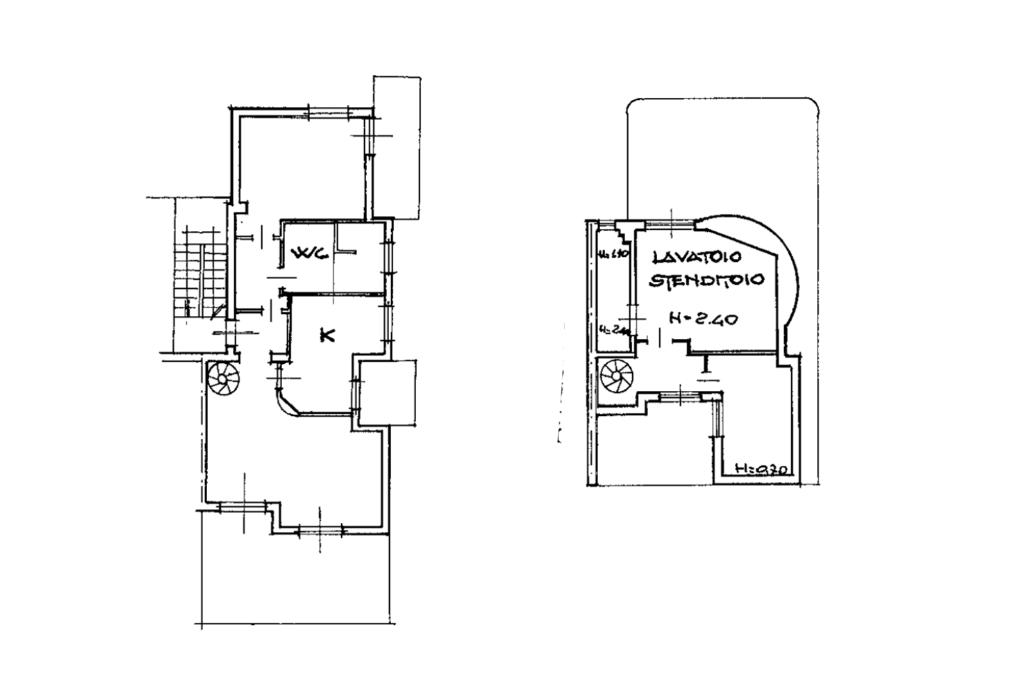
Al secondo piano veniamo accolti da un soggiorno ampio e luminoso, ideale per vivere e condividere gli spazi in totale comfort. La cucina è separata, funzionale e ben organizzata. Dal salone si accede a un comodo terrazzo, perfetto per pranzi all’aperto o momenti di relax, mentre la cucina dispone di un balcone privato.
Sempre sullo stesso livello troviamo una camera matrimoniale con porta finestra e accesso diretto al terrazzo, e un bagno finestrato con vasca.

Salendo al piano superiore troviamo:
una stanza da letto con bagno privato e accesso diretto al terrazzo, un’ulteriore stanza versatile (studio, cameretta o area hobby) e un secondo terrazzo, che rende questo livello estremamente arioso e riservato.

A completare la proprietà, posto auto.

Una soluzione ideale per chi cerca centralità, spazi esterni vivibili, comfort e recente costruzione, senza rinunciare alla privacy.

Mostra tutto

Nelle vicinanze

Trasporto pubblico Trasporto pubblico
Finocchio
Finocchio
400 m
Bolognetta
Bolognetta
440 m
Casilina/Prataporci
Casilina/Prataporci
70 m
Casilina/Militello
Casilina/Militello
160 m
Scuole Scuole
Franco Ferrara
1,3 Km
Scuole
1,8 Km
Prato Fiorito
2,8 Km
Farmacia Farmacia
Farmacia Colle del Sole
2,9 Km
Farmacia
3,0 Km
Supermercati Supermercati
Ipercarni
80 m
Supermercato Il Castoro
150 m
Simply Market
1,4 Km
Eurospin
2,3 Km
Lidl
2,8 Km
Ristoranti Ristoranti
Pizzeria La Vela
1,2 Km
Dom
1,3 Km
Tenuta Santi Apostoli
1,7 Km
Pit Stop
2,6 Km
Da Mario Pizzeria Bisteccheria
2,7 Km
Mostra tutto

Caratteristiche

Rif.:
61167464
Piano:
2 di 3 (Piano ammezzato)
Posti auto:
1
Balconi:
2
Terrazzi:
4
Camere da letto:
3
Mostra tutto
Prezzo Prezzo
€ 219.000
Rata mutuo Rata mutuo
€ 1.032 / mese
Spese annue Spese annue
€ 600
Proponi il tuo prezzoProponi il tuo prezzo

Classe Energetica

G
G
G
G
G
G
G
G
G
EP globale non rinnovabile:
189.00 kW h/m² anno
EP globale rinnovabile:
189.00 kW h/m² anno
EP invernale del fabbricato:
EP estiva del fabbricato:
Anno di costruzione:
2008
Riscaldamento:
Autonomo
Tipo impianto:
A radiatori
Tipo alimentazione:
Metano

Ti interessa visionare l'immobile?

Fissa un appuntamento  Fissa un appuntamento

Richiedi informazioni

Clicca su Leggi per aprire l'informativa
* Questi campi sono obbligatori

Calcola il tuo mutuo

Semplice e senza impegno
Anticipo

( % )
Mutuo

( % )

pochi semplici passi

inserisci i tuoi dati
Questionario completato
Grazie per aver richiesto un appuntamento senza impegno con un nostro Consulente del Credito e Assicurativo.

Hai inserito correttamente tutti i dati necessari e a breve riceverai una e-mail con un link da convalidare per inviare i tuoi dati.
Affiliato
Studio Casilina Srls
Via Casilina, 1842/A 00132 Roma (RM)

Il nostro staff


  • Luca Pelfini
    Affiliato

  • Flavia Biondo
    Affiliata

  • Nicolas Cipelletti
    Collaboratore

  • Chiara Di Cesare
    Collaboratrice

  • Raffaele D'Agostino
    Collaboratore

  • Francesca Di Leggi
    Collaboratrice

  • Daniele Demontis
    Collaboratore

  • Nicole Marcelli
    Coordinatrice

  • Alessandro Pinna
    Responsabile

  • Martina Ortu
    Responsabile

  • Vincenzo Sergi
    Collaboratore
Via Casilina, 1842/A 00132 Roma (RM)
Zona: Finocchio - Borghesiana
Mostra su mappa
Orari: dal lunedì al venerdì dalle 09:00 alle 13:00 e dalle 15:30 alle 20:00. Sabato fino alle 19:00 e al di fuori degli orari su appuntamento.
Affiliato
Studio Casilina Srls
Via Casilina, 1842/A 00132 Roma (RM)

2026 Tecnocasa Franchising S.p.A. - P. IVA 08365160152 - Via Monte Bianco 60/A 20089 Rozzano (MI). Ogni agenzia ha un proprio titolare ed è autonoma. Privacy policy | Policy utilizzo | Cookie policy