Trilocale in vendita

Roma, Via Casilina - Borghesiana
€ 185.000
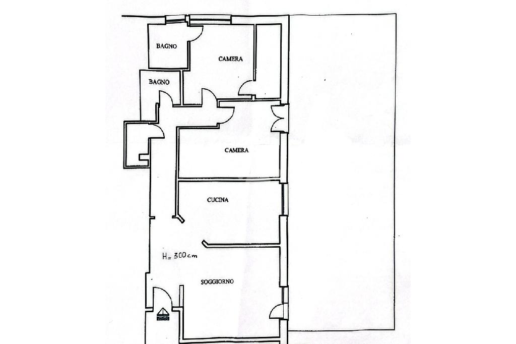
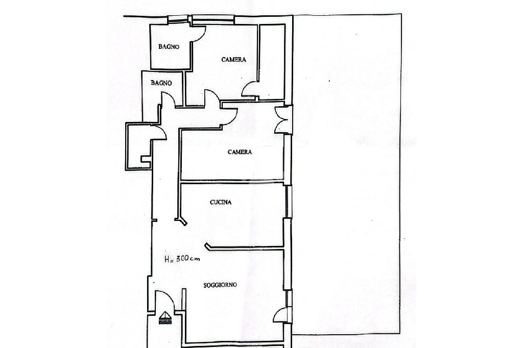
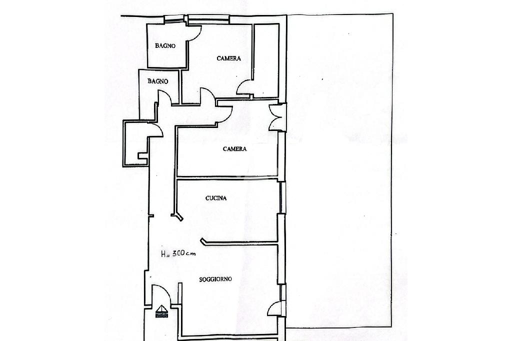
3 locali 3 locali
122 Mq 122 Mq
2 bagni 2 bagni

Trilocale in vendita

Roma, Via Casilina - Borghesiana

Descrizione annuncio

Eleganza e comfort in un unico appartamento dal carattere moderno

Al primo piano di una palazzina curata, proponiamo in vendita un appartamento raffinato, ideale per chi ama gli spazi ampi e funzionali senza rinunciare a uno stile contemporaneo.

Appena varcata la soglia, si viene accolti da un luminoso salone di generose dimensioni, perfetto per ricevere ospiti o vivere momenti di relax in famiglia. Da qui si accede direttamente al vero gioiello della casa: un meraviglioso terrazzo abitabile di circa 70 mq, dove poter cenare all'aperto, organizzare feste con gli amici o semplicemente godersi la tranquillità di casa.

La cucina separata permette di mantenere ordine e praticità senza compromettere l'eleganza della zona giorno.

La zona notte è studiata per offrire privacy e comfort:

- una camera padronale con cabina armadio e bagno privato;

- una seconda camera da letto con accesso diretto al terrazzo;

- un secondo bagno completo e un pratico ripostiglio che semplifica la vita di tutti i giorni.

L'abitazione è dotata di sistema domotico, per gestire luci, temperatura e sicurezza in modo smart e personalizzato, garantendo un comfort abitativo di ultima generazione.

Il grande terrazzo, vero punto di forza, regala la possibilità di vivere l'esterno come un'estensione della casa: un luogo dove rilassarsi, ricevere amici o creare un angolo verde privato lontano da sguardi indiscreti.

Questa casa rappresenta il perfetto equilibrio tra stile, funzionalità e tecnologia pensata per chi sogna un ambiente moderno, accogliente e capace di trasformarsi in uno spazio da vivere ogni giorno con piacere.

Mostra tutto

Nelle vicinanze

Trasporto pubblico Trasporto pubblico
Finocchio
Finocchio
400 m
Bolognetta
Bolognetta
440 m
Casilina/Prataporci
Casilina/Prataporci
70 m
Casilina/Militello
Casilina/Militello
160 m
Scuole Scuole
Franco Ferrara
1,3 Km
Scuole
1,8 Km
Prato Fiorito
2,8 Km
Farmacia Farmacia
Farmacia Colle del Sole
2,9 Km
Farmacia
3,0 Km
Supermercati Supermercati
Ipercarni
80 m
Supermercato Il Castoro
150 m
Simply Market
1,4 Km
Eurospin
2,3 Km
Lidl
2,8 Km
Ristoranti Ristoranti
Pizzeria La Vela
1,2 Km
Dom
1,3 Km
Tenuta Santi Apostoli
1,7 Km
Pit Stop
2,6 Km
Da Mario Pizzeria Bisteccheria
2,7 Km
Mostra tutto

Caratteristiche

Rif.:
61120345
Piano:
1 di 4 (Piano medio)
Terrazzi:
1
Camere da letto:
2
Arredamento:
Assente
Condizionamento:
Autonomo
Mostra tutto
Prezzo Prezzo
€ 185.000
Rata mutuo Rata mutuo
€ 872 / mese
Spese annue Spese annue
€ 720
Proponi il tuo prezzoProponi il tuo prezzo

Classe Energetica

E
E
E
E
E
E
E
E
E
EP globale non rinnovabile:
189.00 kW h/m² anno
EP invernale del fabbricato:
EP estiva del fabbricato:
Anno di costruzione:
1980
Riscaldamento:
Autonomo
Tipo impianto:
A radiatori
Tipo alimentazione:
Metano

Ti interessa visionare l'immobile?

Fissa un appuntamento  Fissa un appuntamento

Richiedi informazioni

Clicca su Leggi per aprire l'informativa
* Questi campi sono obbligatori

Calcola il tuo mutuo

Semplice e senza impegno
Anticipo

( % )
Mutuo

( % )

pochi semplici passi

inserisci i tuoi dati
Questionario completato
Grazie per aver richiesto un appuntamento senza impegno con un nostro Consulente del Credito e Assicurativo.

Hai inserito correttamente tutti i dati necessari e a breve riceverai una e-mail con un link da convalidare per inviare i tuoi dati.
Affiliato
Studio Casilina Srls
Via Casilina, 1842/A 00132 Roma (RM)

Il nostro staff


  • Luca Pelfini
    Affiliato

  • Flavia Biondo
    Affiliata

  • Nicolas Cipelletti
    Collaboratore

  • Chiara Di Cesare
    Collaboratrice

  • Raffaele D'Agostino
    Collaboratore

  • Francesca Di Leggi
    Collaboratrice

  • Daniele Demontis
    Collaboratore

  • Nicole Marcelli
    Coordinatrice

  • Alessandro Pinna
    Responsabile

  • Martina Ortu
    Responsabile

  • Vincenzo Sergi
    Collaboratore
Via Casilina, 1842/A 00132 Roma (RM)
Zona: Finocchio - Borghesiana
Mostra su mappa
Orari: dal lunedì al venerdì dalle 09:00 alle 13:00 e dalle 15:30 alle 20:00. Sabato fino alle 19:00 e al di fuori degli orari su appuntamento.
Affiliato
Studio Casilina Srls
Via Casilina, 1842/A 00132 Roma (RM)

2026 Tecnocasa Franchising S.p.A. - P. IVA 08365160152 - Via Monte Bianco 60/A 20089 Rozzano (MI). Ogni agenzia ha un proprio titolare ed è autonoma. Privacy policy | Policy utilizzo | Cookie policy